4
2
2
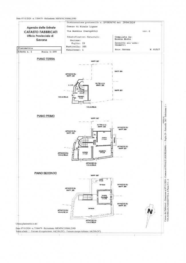
RIF. 1766 - Nella rinomata cittadina di Varigotti, in palazzo d'epoca affacciato sul mare, terracielo disposto su tre livelli con grande terrazzo affacciato sul mare. La casa è composta come segue: PIANO TERRA - ampio ingresso con bagno; PIANO PRIMO - soggiorno, cucina abitabile, camera da letto con bagno privato, ripostiglio, balcone, disimpegno con scala d'accesso al PIANO SECONDO seconda camera da letto ed ampio terrazzo con vista meravigliosa sul mare e sulla baia. L'immobile è libero su tre lati con esposizione nord est ovest, non ha spese di condominio. Pavimentazione in ceramica e graniglia decorata genovese, serramenti in doppio vetro pvc, riscaldamento autonomo, aria condizionata. La posizione rende questa casa unica nel suo genere. R.C. € 606,84.
Aggiornamenti catastali eventualmente in corso. Pertanto, tutti i dati sopra riportarti non costituiscono elementi né presupposti contrattuali.
Vuoi ricevere maggiori informazioni su questo immobile?
Contattaci subito compilando il modulo sottostante!


